| 物件名 |
山梨戸建 |
室番 |
タイプ |
面積 |
構造 |
新築年 |
階建 |
入居予定日 |
| 物件No |
637 |
01 |
2LDK |
79.49 u |
木造 |
2015年8月 |
1 |
即入居 |
| 所在地 |
静岡県静岡市駿河区敷地二丁目24-9 |
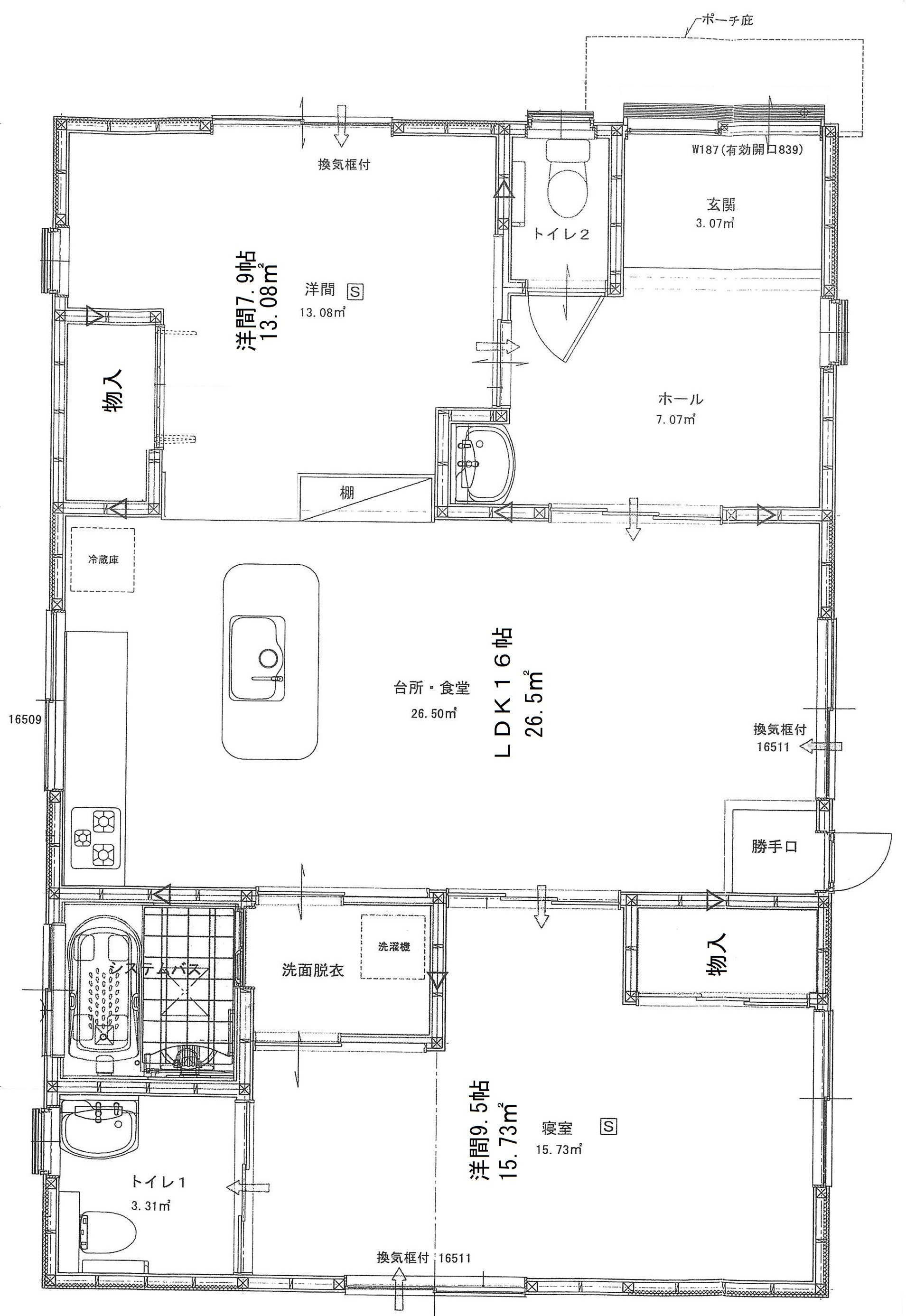
間取

動画をご覧になるためには Windows Media Player が必要になる場合があります。Windows Media
Player をインストールされていない方はこちらから
|
| 間取り |
洋9.5・洋7.9・LDK16 |
| 設備 |
バス・トイレ・シャワー・ガス給湯器 |
| エアコン(3台)照明器具,3口ガスコンロ |
| |
| 備考 |
バリアフリー |
| 退去補修金10万円 |
| 2026/4〜募集 |
| 賃料等 |
家賃 |
100000 |
敷金 |
|
| 共益費 |
|
礼金 |
|
| 駐車料 |
2台付(西側)
|
他 |
|
|
|
|
*他にアパート保険料が掛かります
「敷金0」の物件は「退去補修金」が必要です。
仲介料は、賃料の1ヶ月分(消費税別)となります。
|
| 地図

|
外観図

|
|